
这两年,客厅设计的潮流变化很快。一是客厅格局,从竖厅到横厅再到方厅、巨厅。二是客餐厅一体化设计,增强家庭核心区的比例。我们可以看到,各大房企推出了新户型,基本都是一样的思路。
但是,从2020年下半年以来,边厅户型占领市场的势头很猛。超强的采光和极致视野带来的体验价值,广受8090后客户的追捧,竞争力十足。

接下来我们看一看,今年火爆了的“边厅”,各大地产商是如何做的?
生活广角,容纳居住与社交

270°端厅推门见景,制造环幕震撼观景,一面是生活区和社交区的延伸,一面是主人私享的空中花园,这样的应用不仅有科学考虑,更是基于重庆人对于阳光的渴求。
小户型大边厅

最大的亮点在客厅,整面南侧和沙发墙的位置,有一个巨型的转角大飘窗,视野非常爽。


相比传统的独立客厅,家具摆放有更多的自由度,通过调整家具布局,家具搭配有更多的可能性,让生活有更多的灵气,让精神有更多的灵感。


横向角厅结合了横厅把交通面积与LDKG合厅融合在一起的优点,并融合了边厅视野开阔、通风透气的优点。
邀湖入内,不如将空间推入湖光中

南侧宽至5.1米,东侧更宽达7米,由此,270°环绕式IMAX观湖视角初步打开。
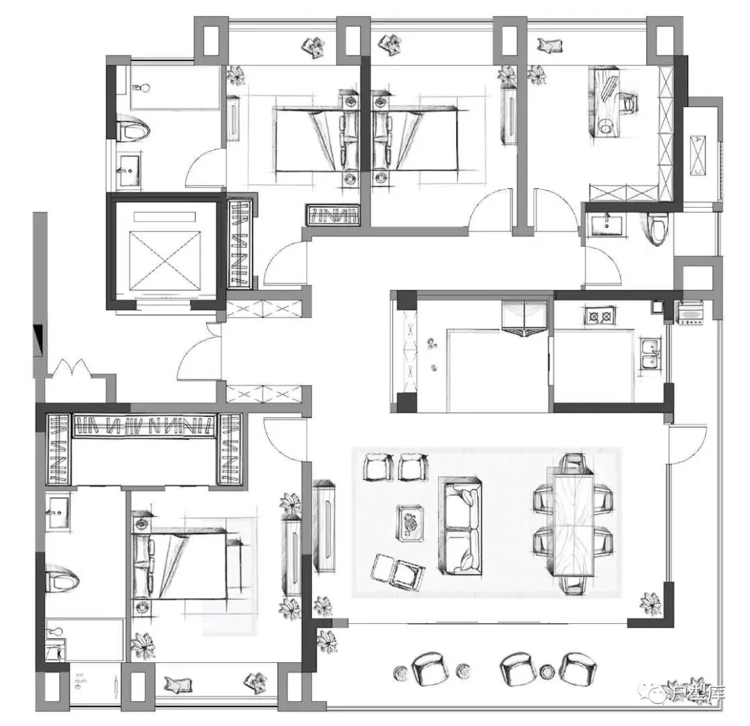
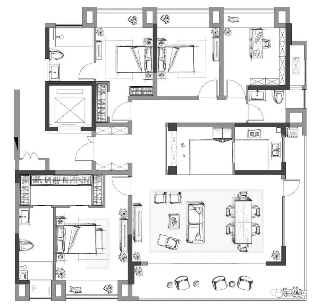
一半是卧室一半是客厅

厅的面积高达100平,所有公共空间都是互通的,家庭成员之间无论处在哪个区域,都能时刻保持着很好的交流。
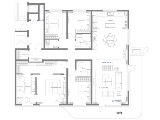
让家庭之间交流更为频繁的“LDKB无限空间体系”
北京 世茂北京天誉

近100平方米LDKB空间的设计,其主导思想就是家庭关系的互动和社交,给与家庭社交足够的场景和空间,让房子是为人服务的。


客餐厅面积达到约73平米,三面采光,且主采光面接近12.5米。采用这种窗墙比,本质上提升了空间舒适度与居住氛围,将整体生活投射到更大的景观场景里。
创新与交互,功能与礼仪并重
成都 融创国宾雅集


12m*7m的家庭社交区域,外加20余米的L型阳台,气场强大。


32°楼体瞰江角度、270°观景面,将一线江景的核心资源价值融入到户型设计中。
双客厅,全套房,极致体验
重庆 龙湖舜山府


让人挪不开眼的,是这个270°转角大阳台,简直堪称“跑道式阳台”。
微信扫一扫
关注该公众号